革新的な建築はいかにして生み出されているのか、その創造プロセスの現場に迫る『設計プロセスの現場』10月発売

グラフィック社は、書籍『設計プロセスの現場』を、2024年10月に発売いたします。

『設計プロセスの現場』書影
『設計プロセスの現場』書影

革新的な建築はいかにして生み出されているのか

いくつもの検討を重ねて方向性を見つけ出し、また戻って、を繰り返す。ひとつの仕事としては不釣り合いなほどの熱量をもってつくり出される。設計のリアルを、7組の建築家が自ら解き明かします。模型、スケッチ、CG、図面、写真など多数収録。圧倒的な熱量と設計のリアルを追求した1冊。

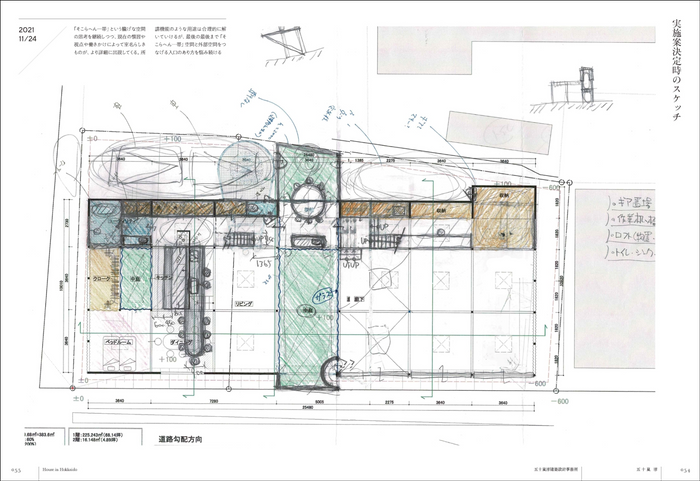
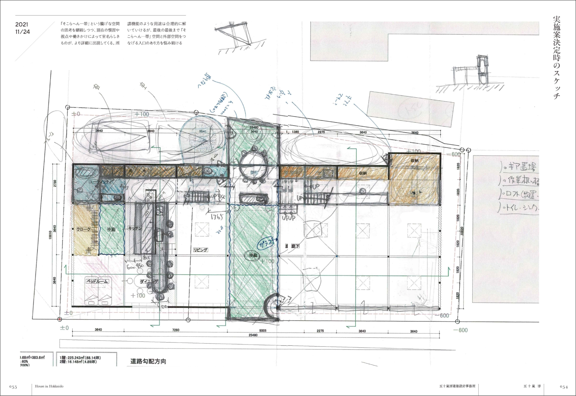
◆本書イメージ

<目次>

設計プロセスという創造行為 (今村創平)
1 中山英之  弦と弧(2017) 
2 五十嵐淳  House in Hokkaido(2023) 
3 島田陽  白川の住居(2022)
4 木村吉成+松本尚子  houseH / studioH(2022)
5 二俣公⼀  Whale Brewing 呼子クラフトビール醸造所(2023)
6 古谷俊一  7 ARHITECTURE in MIZONOKUCHI(2021-)
7 山﨑健太郎  52間の縁側(2022)
建築データ

<著者プロフィール>

中山英之(ナカヤマヒデユキ)
1972年福岡生まれ。2007年中山英之建築設計事務所設立。現在、東京藝術大学教授
主な受賞にSD Review 2004 鹿島賞、第23回吉岡賞、Red Dot Design Award、第17回環境・設備デザイン賞優秀賞、2019年度グッドデザイン賞金賞、2019年度日本建築仕上学会 学会賞 作品賞・建築部門など。

五十嵐 淳(イガラシジュン)
1972年神戸生まれ。1997年タトアーキテクツ設立。現在、京都市立芸術大学教授
主な受賞に「六甲の住居」でLIXILデザインコンテスト2012金賞、第29回吉岡賞受賞、「石切の住居」で2016年度日本建築設計学会賞大賞、「ハミルトンの住居」でNational Commendation, AIA National Architecture Awards、「宮本町の住居」でDezeen Awards2018 House of the Year受賞。

島田 陽(シマダヨウ)
1972年神戸生まれ。1997年タトアーキテクツ設立。現在、京都市立芸術大学教授
主な受賞に「六甲の住居」でLIXILデザインコンテスト2012金賞、第29回吉岡賞受賞、「石切の住居」で2016年度日本建築設計学会賞大賞、「ハミルトンの住居」でNational Commendation, AIA National Architecture Awards、「宮本町の住居」でDezeen Awards2018 House of the Year受賞。

木村吉成(キムラヨシナリ)+松本尚子(マツモトナオコ)
(木村吉成)1973年和歌山生まれ。2003年木村松本建築設計事務所を共同設立。現在、大阪芸術大学芸術学部建築学科准教授。
(松本尚子)1975年京都生まれ。2003年木村松本建築設計事務所を共同設立。現在、京都芸術大学環境デザイン学科准教授、大阪公立大学非常勤講師。
主な受賞に「houseT/salonT」で第33回新建築吉岡賞、「house A/shop B」で第12回関西建築家新人賞、第7回藤井厚二賞、第33回JIA新人賞など。

二俣公一(フタツマタコウイチ)
1975年鹿児島生まれ。デザインユニット「CASE REAL」として活動開始。2000年自身の設計事務所「ケース・リアル(CASE-REAL)」を福岡に開設。2005年東京事務所開設。2013年同所内に「二俣スタジオ(KOICHI FUTATSUMATA STUDIO)」設置。2021~2023年 神戸芸術工科大学客員教授
活動開始以来、国内外でインテリア・建築・家具・プロダクトと多岐に渡るデザインを手がけている
主な受賞に、JCDアワード(現・日本空間デザイン賞)、FRAMEアワード、Design Anthologyアワード・インテリアデザイナー賞など

古谷俊一(フルヤシュンイチ)
1974年東京都生まれ。2009年古谷デザイン建築設計事務所設立。2022年みどりの空間工作所設立。現在、京都芸術大学客員教授。
主な受賞に「深大寺ガーデンレストランMaruta」で日本空間デザイン賞2020 大賞、「深大寺ガーデン」で第18回環境・設備デザイン賞都市・ランドスケープデザイン部門 最優秀賞、「スイシャハウス・スイシャオフィス」で第2回日本建築士会連合会 建築作品賞 優秀賞、「大森ロッヂ新棟 笑門の家」で東京建築士会 住宅建築賞2023 住宅建築賞など

山﨑健太郎(ヤマザキケンタロウ)
1976年千葉生まれ。2008年山﨑健太郎デザインワークショップ設立。現在、工学院大学建築学部建築デザイン学科教授。
主な受賞に「糸満漁民食堂」で2015年日本建築学会作品選集新人賞を受賞。「はくすい保育園」で建築部門で日本人初となるiF DESIGN AWARD2017年金賞受賞。「新富士のホスピス」で2021年度JIA優秀建築賞を受賞。「52間の縁側」で2024年日本建築学会賞(作品)、2023年度JIA日本建築大賞、2023年度グッドデザイン大賞 内閣総理大臣賞を受賞など

今村創平(イマムラソウヘイ)
1966年東京都生まれ。AAスクール、長谷川逸子・建築計画工房を経て、アトリエ・イマム主宰。現在、千葉工業大学創造工学部建築学科教授。
ブリティッシュ・コロンビア大学大学院 兼任教授、東京大学大学院、法政大学大学院、明治大学大学院にて非常勤講師を歴任

<書籍情報>

書名:設計プロセスの現場
著者:中山英之、五十嵐 淳、島田 陽、木村吉成+松本尚子、二俣公一、古谷俊一、山﨑健太郎、今村創平
発売日:2024年10月
仕様:B5ワイド判 PUR製 総240頁
定価:3,630円(10%税込)
ISBN:978-4-7661-3934-1
Amazon https://www.amazon.co.jp/dp/4766139348/
楽天ブックス https://books.rakuten.co.jp/rb/18005446/

<好評関連書籍>

書名:建築・住宅デザインの現場
著者:高野保光、芦沢啓治、新関謙一郎、手嶋保、藤本寿徳、熊澤安子、杉下均+出口佳子、中山大介
発売日:2024年7月
仕様:B5ワイド判 PUR製 総224頁
定価:3,520円(10%税込)
ISBN:978-4-7661-3836-8
Amazon https://www.amazon.co.jp/dp/4766138368/
楽天ブックス https://books.rakuten.co.jp/rb/17912726/
●プレスリリース https://prtimes.jp/main/html/rd/p/000000389.000084584.html

書名:構造デザインの現場
著者:多田脩二、山田憲明、小西泰孝、満田衛資、大野博史、萩生田秀之、三原悠子、荒木美香、村田龍馬
解説:小澤雄樹
発売日:2024年3月
仕様:B5ワイド判 PUR製 総224頁
定価:3,630円(10%税込)
ISBN:978-4-7661-3835-1
Amazon https://www.amazon.co.jp/dp/476613835X
楽天ブックス https://books.rakuten.co.jp/rb/17793221/
●プレスリリース https://prtimes.jp/main/html/rd/p/000000345.000084584.html


【書籍に関するお問い合わせ】

株式会社グラフィック社
〒102-0073 東京都千代田区九段北1-14-17
ホームページ:https://www.graphicsha.co.jp/
X:https://x.com/Gsha_design/
Instagram:https://www.instagram.com/graphic_sha/
Facebook:https://www.facebook.com/graphicsha/


AIが記事を作成しています